案例介紹
                             
                               吉林省 - 吉林市 - 豐滿區(qū)
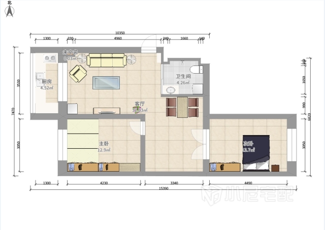
                                                              紫金江尚
                                                            
                           
                           
                       戶型圖
                                   
                               
 
                                                                      
                                                                      
                                                                      
                                                                      
                                                                      
                                                                      
                                                                      
                                                                      
                                                                      
                                                                     免費申請設計
設計師上門服務全程免費,禁止以任何形式收取費用。
 
                         
                         
                         
                         
                         
                             
                                   