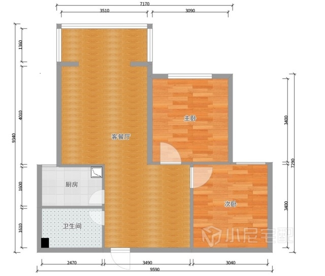
案例介紹
                             
                               河北省 - 保定市 - 淶水縣
                                                              藍(lán)波圣景
                                                            
                           
                           
                       戶(hù)型圖
                                   
                               
 
                                                                      
                                                                      
                                                                      
                                                                      
                                                                      
                                                                      
                                                                      
                                                                      
                                                                      
                         
                         
                         
                         
                         
                             
                                   