案例介紹
                             
                               河北省 - 廊坊市 - 三河市
                                                              華泰
                                                            
                           
                           
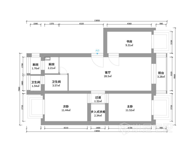
                       戶型圖
                                   
                               
 
                                                                     進門正對衣帽間隱形門,隱形門采用裝飾畫裝飾,藝術感很強
 
                                                                     客廳簡單白色調為主,干凈自然
 
                                                                     餐廳一樣為白色調為主,與客廳相呼應
 
                                                                     衛(wèi)生間采用暖色墻磚,顯得溫暖
 
                                                                     廚房空間小,顯得狹小,充分利用陽臺空間
 
                                                                     書房設置雙人位,休閑娛樂一體
 
                                                                     主臥室全屋定制榻榻米,選用暖色調為主
 
                                                                     次臥室全屋定制榻榻米,選用暖色調為主
免費申請設計
設計師上門服務全程免費,禁止以任何形式收取費用。
 
                         
                         
                         
                         
                         
                             
                                   