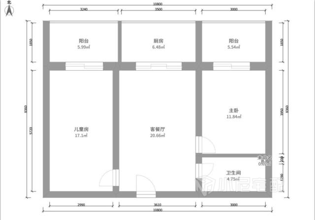
案例介紹
                             
                               北京市 - 順義區(qū)
                                                              部隊(duì)家屬院
                                                            
                           
                           
                       戶型圖
                                   
                               
 
                                                                      
                                                                      
                                                                      
                                                                      
                                                                      
                                                                      
                                                                      
                                                                      
                                                                      
                                                                      
                                                                      
                                                                      
                                                                      
                         
                         
                         
                         
                         
                             
                                   